連云港鷹游紡機有限責任公司 |
|
| 聯系人: | 電話: |
| 傳真: | 地址:江蘇省連云港市海州開發區振興路1號 |
| 郵編:2220062 | 郵箱: |
| 網址:http://yyfj.zglcn.net/ | |
.jpg)

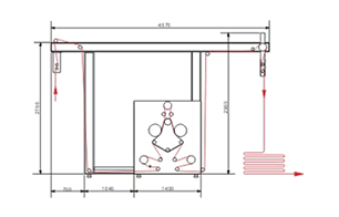
1、適用于毛紡、人造毛皮、毛毯、經編等織物的燙光
2、機器幅寬: 2000MM 2200MM 2500MM
3、工作速度:0-17M/MIN
4、燙光輥:電熱功率:69.6KW
燙光溫度:100-200℃±5℃(自控)
氈圈包角:α=0-35℃
5、電機功率:10.75KW
6、外形尺寸:(長X寬X高)4570 X4000 X3170(MM)









|
無錫二橡膠股份有限公司 |
常州市潤源經編機械有限公司 |
|
青島云龍紡織機械有限公司 |
黃石經緯紡織機械有限公司 |